Type text, add images, blackout confidential details, add comments, highlights and more.
02. Sign it in a few clicks
Draw your signature, type it, upload its image, or use your mobile device as a signature pad.
03. Share your form with others
Send it via email, link, or fax. You can also download it, export it or print it out.
How to use or fill out Development Certificates - Atlantic City, NJ - eCode360 with our platform
Ease of Setup
DocHub User Ratings on G2
Ease of Use
DocHub User Ratings on G2
Click ‘Get Form’ to open the Development Certificate in the editor.
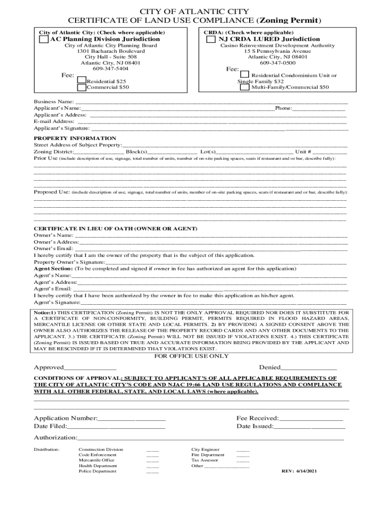
Begin by checking the appropriate jurisdiction box for either the AC Planning Division or CRDA. This helps identify which authority will process your application.
Fill in the fee section based on your property type: $32 for Residential Condominium or Single Family, $50 for Multi-Family/Commercial, and $25 for Residential or $50 for Commercial.
Complete the applicant's information including name, phone number, address, and email. Ensure accuracy as this is crucial for communication.
Provide detailed property information such as street address, zoning district, block and lot numbers, and prior use description. Be thorough to avoid delays.
Describe the proposed use of the property clearly, including signage and parking details.
If applicable, complete the Owner’s or Agent’s section with signatures to certify authorization.
Start using our platform today to streamline your form completion process effortlessly!
Fill out Development Certificates - Atlantic City, NJ - eCode360 online It's free
See more Development Certificates - Atlantic City, NJ - eCode360 versions
We've got more versions of the Development Certificates - Atlantic City, NJ - eCode360 form. Select the right Development Certificates - Atlantic City, NJ - eCode360 version from the list and start editing it straight away!
The City/Municipality Code is used to identify the cities, municipalities, or municipal districts in a particular province, and is dependent upon the Province Code to fully establish the identity of municipality. Region. Select an item Region. Region. [01] Region I - Ilocos.
What is the municipal code for Atlantic City NJ?
0101 - Absecon City 0305 - Burlington City 0608 - Lawrence Twp. 1104 - Hightstown Bor. 1409 - Dover Town 1801 - Bedminster Twp. 0102 - Atlantic City 0306 - Burlington Twp.
Is Atlantic City part of New Jersey?
Atlantic City city, New Jersey is a city, town, place equivalent, or township located in New Jersey. Atlantic City city, New Jersey has a land area of 10.8 square miles.
What is a county municipality code?
Municipal code may refer to: Community Identification Number, a number sequence for the identification of politically independent municipalities or unincorporated areas. Legal code (municipal) Municipal ordinances, laws that are enacted and enforced by a village, town, city or county government.
Related Searches
Atlantic City Zoning MapAtlantic City, nj ZoningRS-C Zoning atlantic City njAtlantic City Zoning CodeAtlantic City tax mapAtlantic City developmentAtlantic City OrdinancesAtlantic City airport code
Security and compliance
At DocHub, your data security is our priority. We follow HIPAA, SOC2, GDPR, and other standards, so you can work on your documents with confidence.
The 609 and 640 area codes cover Atlantic City, New Jersey. Located along the Atlantic Ocean, Atlantic City is not only a center for business opportunities but also a destination famous for its vibrant entertainment scene and famous boardwalk.
Related links
The Official Website of City of Atlantic City, NJ - Ordinances
View Codified Ordinances at eCode 360 Revised General Ordinances of the Atlantic City, NJ County of Atlantic State of New Jersey 1976
Exploring Taxation as a Substitute for Overregulation in the
by SE Sterk 2013 Cited by 14 The process of land use regulation has endured heavy criticism in recent years, both nationally and, more particularly, in New York City.
Cookie consent notice
This site uses cookies to enhance site navigation and personalize your experience.
By using this site you agree to our use of cookies as described in our Privacy Notice.
You can modify your selections by visiting our Cookie and Advertising Notice.