Illinois notification form 2026

Get Form
illinois asbestos project notification form Preview on Page 1

Here's how it works

01. Edit your illinois asbestos project notification form online
Type text, add images, blackout confidential details, add comments, highlights and more.
02. Sign it in a few clicks
Draw your signature, type it, upload its image, or use your mobile device as a signature pad.
03. Share your form with others
Send il532 1296 via email, link, or fax. You can also download it, export it or print it out.

Definition and Meaning

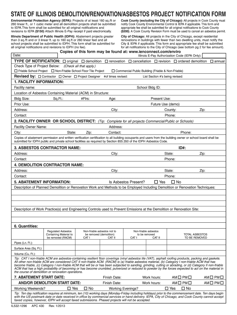
The Illinois notification form is a critical compliance document required for a variety of projects involving demolition, renovation, or asbestos abatement within the state of Illinois. This form serves as a formal declaration to several regulatory bodies regarding the nature and scope of a project. Its primary function is to ensure that all relevant authorities are informed of potential environmental or health-related risks associated with the projects. The form is essential in communicating details of the project to the Illinois Environmental Protection Agency (IEPA), the Cook County Environmental Control, the Illinois Department of Public Health (IDPH), and local authorities such as the City of Chicago.

How to Obtain the Illinois Notification Form

Acquiring the Illinois notification form can be done through several channels. Typically, forms are available for download from the official websites of regulatory agencies like the IEPA and other relevant state departments. Individuals can access digital versions that allow for an interactive fillable format, which aids in the accuracy and completion of the form. Additionally, physical copies may be available at local government offices or can be requested via mail. For individuals and businesses with ongoing projects, registering in the state’s compliance management portal may streamline the acquisition process and provide updates on any revisions or requirements for the form.

Online Resources and Portals

  • Official State Websites: Downloadable forms with user guides to complete and submit.
  • Compliance Portals: Registration may provide access to fillable forms and submission tracking.
  • Local Government Offices: Contact for physical copies if needed.

Steps to Complete the Illinois Notification Form

Filling out the Illinois notification form requires adherence to specific instructions to ensure no details are omitted. A step-by-step approach facilitates accurate completion:

  1. Project Description: Clearly define the project type, location, and duration.
  2. Asbestos Information: Provide any relevant data on asbestos presence, including inspection results and management plans if applicable.
  3. Contractor Details: Include contractor license numbers, contact information, and proof of certification.
  4. Start and End Dates: Indicate precise project timelines to avoid penalties.
  5. Signature Verification: Ensure a responsible party signs the form to validate the information provided.

Each section should be reviewed before submission to confirm that it complies with regulatory requirements and avoids unnecessary project delays.

Key Elements of the Illinois Notification Form

Several key elements make up the Illinois notification form, each serving a unique role in the submission process:

  • Project Location: Exact address and specifics regarding the site must be included.
  • Scope of Work: Details on what the project involves—especially any demolition and potential hazardous material handling.
  • Responsible Parties: Contacts and credentials for all key stakeholders, including owners, contractors, and any third-party inspectors.

These components are critical for both legal compliance and for the protection of public health and safety.

Who Typically Uses the Illinois Notification Form

Individuals and organizations commonly required to use this form include building owners, construction contractors, and environmental consultants. Companies engaged in public infrastructure projects, large-scale renovations, and private demolitions are frequent users. Additionally, businesses specializing in asbestos remediation find this form integral to their operations due to stringent regulations on handling hazardous materials. For each of these users, understanding and correctly filing the form ensures adherence to state regulations, thereby preventing fines and legal complications.

decoration image ratings of Dochub

Penalties for Non-Compliance

Non-compliance with the Illinois notification form protocols can lead to severe penalties. These could include fines, work stoppage orders, or legal action taken by state or local authorities. Penalties are imposed based on the nature and severity of the infraction, such as failing to report asbestos-related findings or proceeding with unauthorized work. Consequently, staying informed about compliance requirements and ensuring that all documentation is submitted accurately and promptly is crucial.

Common Non-Compliance Consequences

  • Fines: Potentially substantial financial penalties levied based on project scale.
  • Legal Action: Risk of lawsuits if non-compliance results in public health risks.
  • Project Delays: Mandatory halts in project work until compliance issues are resolved.

Legal Use of the Illinois Notification Form

The form operates under a framework established by state and federal regulations to protect public health, especially concerning asbestos exposure. It is legally binding, and submission constitutes a formal agreement to follow outlined safety and environmental guidelines. The form also mandates that projects comply with the Clean Air Act and other relevant environmental statutes. Legal use requires that all information is truthful, complete, and submitted within the stipulated timeframes to relevant authorities.

State-Specific Rules for the Illinois Notification Form

The notification form operates under Illinois-specific statutes that may differ from other states, especially concerning asbestos management. Unique requirements might involve additional documentation, such as site-specific safety plans or environmental impact assessments. Awareness and adherence to these rules are necessary to avoid delays and ensure that projects can proceed smoothly under state legislation. Moreover, understanding Illinois-specific processes can significantly enhance compliance and streamline the approval process for project initiators.

Notable Illinois-Specific Regulations

  • Asbestos Abatement: Required documentation for projects involving suspected asbestos materials.
  • Environmental Impact: Mandatory assessments for projects in certain geographic areas prone to ecological sensitivity.
  • Submission Timelines: Varying deadlines depending on the project's location within the state.
be ready to get more

Complete this form in 5 minutes or less

Get form

Security and compliance

At DocHub, your data security is our priority. We follow HIPAA, SOC2, GDPR, and other standards, so you can work on your documents with confidence.

Learn more
ccpa2
pci-dss
gdpr-compliance
hipaa
soc-compliance
be ready to get more

Complete this form in 5 minutes or less

Get form