Envirobidnet view-bid689672Athens, TN Sample Bid #689672 - envirobidnet 2026

Get Form
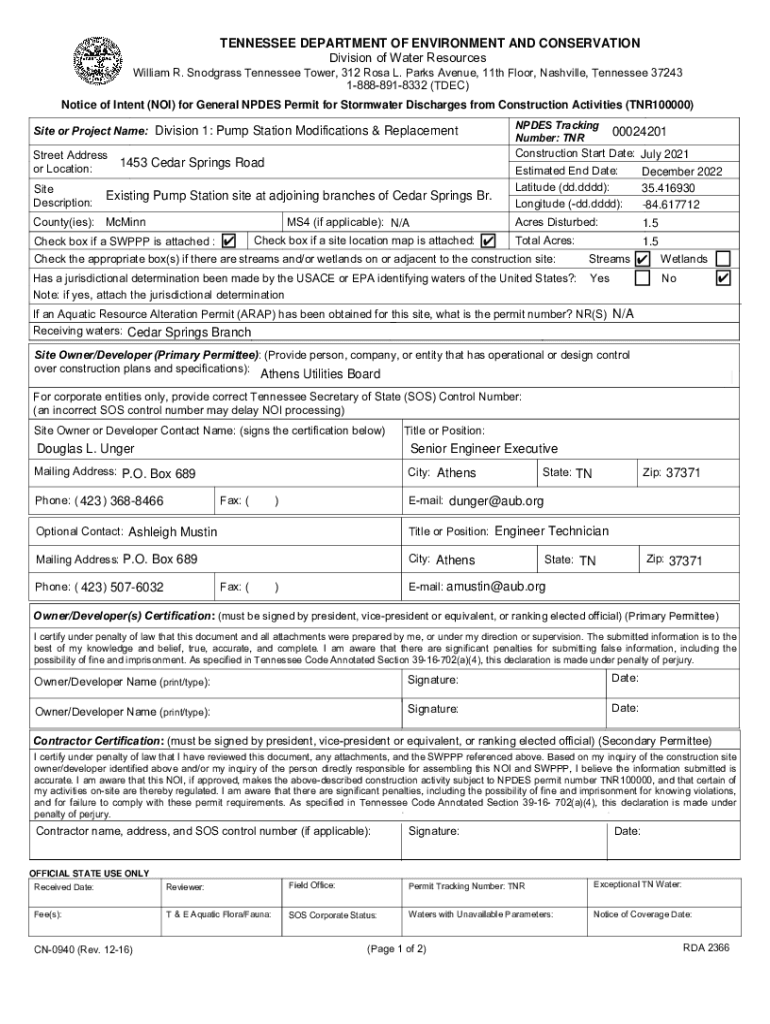
envirobidnet view-bid689672Athens, TN Sample Bid #689672 - envirobidnet Preview on Page 1

Here's how it works

01. Edit your form online
Type text, add images, blackout confidential details, add comments, highlights and more.
02. Sign it in a few clicks
Draw your signature, type it, upload its image, or use your mobile device as a signature pad.
03. Share your form with others
Send it via email, link, or fax. You can also download it, export it or print it out.

Definition & Meaning

The "envirobidnet view-bid689672Athens, TN Sample Bid #689672 - envirobidnet" largely pertains to bidding documentation and procedures associated with a specific project in Athens, Tennessee. This document serves as a formal request for contractors to submit proposals or bids for a specified project. It generally includes details about the project’s scope, requirements, deadlines, and any applicable legal or regulatory conditions. Typically utilized in the context of government or municipal projects, these bids ensure transparency and competitiveness in the selection of contractors.

How to Use the Envirobidnet View-Bid689672Athens, TN Sample Bid

To effectively utilize this bid document, a user should initially review all project details and requirements described within the document. This involves understanding the specifications, legal obligations, and the deliverables involved. Potential bidders need to prepare a comprehensive proposal that addresses each requirement stipulated in the document. It is crucial to outline your qualifications, proposed timelines, and detailed cost estimates, ensuring everything aligns with the project's expectations.

  • Review all project specifications and requirements carefully.
  • Prepare a proposal that addresses each requirement explicitly.
  • Include details such as qualifications, timelines, and cost estimates.

Steps to Complete the Envirobidnet View-Bid689672Athens, TN Sample Bid

  1. Review the Document: Begin by thoroughly reading the bid document to understand the project’s scope and requirements.

  2. Prepare Proposal: Draft a detailed proposal that aligns with the project requirements. Incorporate all requested information such as experience, timeline, and budget.

  3. Gather Required Documents: Assemble all necessary supplemental documentation including licenses, certifications, and financial statements.

  4. Submit Proposal: Follow the specific submission guidelines outlined in the bid instructions, ensuring all documentation is submitted by the deadline.

  5. Follow-Up: After submission, monitor communications from the awarding body for any follow-up or additional requirements.

Important Terms Related to Envirobidnet View-Bid689672Athens, TN Sample Bid

  • Bid Document: A formal invitation by an organization to solicit bids from qualified professionals for a project.
  • Proposal: A detailed plan submitted in response to a bid invitation, outlining how the bidder intends to fulfill the project's requirements.
  • Qualifications: The credentials and experience that establish a bidder’s ability to successfully complete the project.

Key Elements of the Envirobidnet View-Bid689672Athens, TN Sample Bid

The sample bid contains critical segments that potential bidders must review:

  • Project Overview: An outline of what the project entails and its objectives.
  • Specification Details: Detailed descriptions of the work to be completed, including materials and workmanship standards.
  • Submission Requirements: Criteria that define what must be included in the proposal, such as formats and document types.

Who Typically Uses the Envirobidnet View-Bid689672Athens, TN Sample Bid

Typically, construction companies, engineering firms, and environmental consultants use this type of bid document. These professionals analyze the bid specifications to prepare competitive proposals. Such documents are particularly relevant to companies seeking public works or government contracts, which require adherence to precise technical and regulatory conditions.

decoration image ratings of Dochub

Examples of Using the Envirobidnet View-Bid689672Athens, TN Sample Bid

An environmental consulting firm might use this bid document to propose a plan for handling environmental compliance matters for the Athens Sewer System Improvements project. Alternatively, a construction company might outline its approach to executing the pump station modifications and force main extensions, incorporating both technical expertise and cost efficiencies.

Legal Use of the Envirobidnet View-Bid689672Athens, TN Sample Bid

The legal implications include ensuring compliance with all governmental standards and contractual obligations. Bidders must provide truthful information and submit bids within the deadline to avoid disqualification. Misrepresentation of capabilities or submitting fraudulent documents can result in penalties and legal action.

State-Specific Rules for the Envirobidnet View-Bid689672Athens, TN Sample Bid

In Tennessee, bidders must adhere to local procurement laws and standards. Such laws may dictate specific licensing requirements, bidding procedures, and mandatory documentation. For instance, compliance with state environmental regulations during construction, such as stormwater discharge permits, must be factored into the bidding process.

See more envirobidnet view-bid689672Athens, TN Sample Bid #689672 - envirobidnet versions

We've got more versions of the envirobidnet view-bid689672Athens, TN Sample Bid #689672 - envirobidnet form. Select the right envirobidnet view-bid689672Athens, TN Sample Bid #689672 - envirobidnet version from the list and start editing it straight away!
Versions Form popularity Fillable & printable
2022 4.8 Satisfied (42 Votes)
2016 4 Satisfied (65 Votes)
be ready to get more

Complete this form in 5 minutes or less

Get form

Got questions?

We have answers to the most popular questions from our customers. If you can't find an answer to your question, please contact us.
Contact us
Bid Banana Powered by The Bid Lab Together they created the industrys best RFP search engine. Bid Banana helps you easily find RFPs across all lines of business and geographic locations.
The RFP process begins with drafting a request for proposal. Bidders review the solicitation and submit suggestions for improvement. After implementing feedback, the final request for proposal is issued. Bidders then submit their proposals.
(a) Bid sample means a product sample required to be submitted by a bidder to show those characteristics of the offered products that cannot adequately be described by specifications, purchase descriptions, or the invitation for bid (e.g., balance, facility of use, or pattern). 52.214-20 Bid Samples. - Acquisition.GOV Acquisition.GOV far Acquisition.GOV far
Two ways to find open RFPs The RFP database Government and corporate RFPs. FindRFP Government and corporate RFPs. Government Bids Government only. GovSpend Government only. Gov RFP Finder Government only. Bid Search Government only. Open Minds Government only. Bid Prime Government only.
LinkedIn is the most popular social network for finding RFPs, but you will also see some on Twitter. Luckily, the search functionality on these networks makes RFPs easy to find. Simply search your industry and RFP to browse through the results and find the latest open opportunities. How to Find RFPs and Win Them - Responsive.io Responsive.io blog find-rfps Responsive.io blog find-rfps

Security and compliance

At DocHub, your data security is our priority. We follow HIPAA, SOC2, GDPR, and other standards, so you can work on your documents with confidence.

Learn more
ccpa2
pci-dss
gdpr-compliance
hipaa
soc-compliance
be ready to get more

Complete this form in 5 minutes or less

Get form

People also ask

Therefore, you can almost always find public RFPs on the issuing organizations website. Look for the labels publishing or procurement. Oftentimes, newspapers or other local publications will publish RFPs.