State Of Michigan Mechanical Permit - US Legal Forms 2026

Get Form
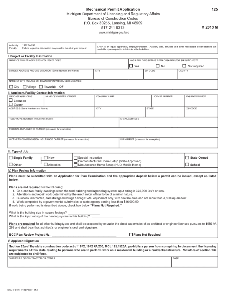
mi mechanical permit application Preview on Page 1

Here's how it works

01. Edit your mi mechanical permit application online
Type text, add images, blackout confidential details, add comments, highlights and more.
02. Sign it in a few clicks
Draw your signature, type it, upload its image, or use your mobile device as a signature pad.
03. Share your form with others
Send it via email, link, or fax. You can also download it, export it or print it out.

Definition & Meaning

The State Of Michigan Mechanical Permit is a legally required document issued by the Michigan Department of Licensing and Regulatory Affairs. It is necessary for all construction projects involving mechanical systems, such as heating, ventilation, and air conditioning (HVAC), to comply with state regulations. The permit ensures that mechanical work is performed according to safety and building codes, protecting the welfare of the public and ensuring the integrity of structures within Michigan. This form includes sections on project details, applicant information, and job type, among others.

Steps to Complete the State Of Michigan Mechanical Permit - US Legal Forms

  1. Gather Project Details: Start by collecting all relevant data about the construction project, including the site location, type of structure, and details about the mechanical systems involved.

  2. Provide Applicant Information: Enter information about the applicant, who can be the property owner, contractor, or authorized agent. Ensure that all contact details are accurate to avoid delays.

  3. Specify Job Type and Scope: Clearly indicate the type of mechanical work to be performed—such as installing a new HVAC system, plumbing work, or ductwork replacement—along with the scale and scope of the project.

  4. Review Plan Requirements: If the project necessitates a plan review, include detailed plans and drawings that outline the mechanical systems' design. This step is crucial for large or complex projects.

  5. Calculate Fees: Refer to the fee schedule included in the permit application. Fees can vary based on the project size and scope, so ensure accurate calculations to avoid any processing issues.

  6. Complete and Submit the Form: Once all sections are filled, review the form thoroughly for completeness and accuracy. Submit the application as instructed, either online, via mail, or in-person.

Important Terms Related to State Of Michigan Mechanical Permit

  • HVAC: Heating, Ventilation, and Air Conditioning systems that regulate indoor environmental comfort.

  • Plan Review: The process by which submitted building plans are reviewed for compliance with local codes and regulations before permit approval.

  • Permit Fee: The cost associated with processing the mechanical permit application, which may vary depending on the complexity and size of the project.

Key Elements of the State Of Michigan Mechanical Permit - US Legal Forms

  • Project Details: Information on the type and scope of the mechanical work, including any new installations or modifications to existing systems.

  • Applicant Information: Section dedicated to details about the person or entity responsible for applying for the permit.

  • Job Type: Specification of the mechanical work being undertaken, such as installation or maintenance.

  • Fee Schedule: An itemized list of costs associated with different aspects of the permit application and approval process.

State-Specific Rules for the State Of Michigan Mechanical Permit - US Legal Forms

Michigan enforces strict guidelines to ensure that all mechanical systems meet safety and efficiency standards. This includes adhering to local building codes and obtaining necessary inspections at various construction stages. Additionally, certain projects may require a licensed professional to assume responsibility for the mechanical work undertaken.

Examples of Using the State Of Michigan Mechanical Permit

  • Residential HVAC Installation: A homeowner in Michigan plans to install a new central air conditioning unit and needs to get a mechanical permit before beginning work.

  • Commercial Ventilation Update: A business plans to upgrade its ventilation system to meet new health regulations and must apply for a permit to ensure compliance.

Required Documents

Applicants must provide specific documentation, including detailed project plans, proof of ownership or authorization to conduct work, and sometimes, a contractor's license. These documents are submitted together with the permit application for review.

Who Issues the Form

The Michigan Department of Licensing and Regulatory Affairs oversees the issuance of the State Of Michigan Mechanical Permit. They handle the processing, review, and approval of applications, ensuring all projects meet state-wide standards.

Penalties for Non-Compliance

Failure to obtain the appropriate mechanical permit can result in fines, project delays, and in some cases, a halt order on construction. It is essential to secure the permit to avoid legal and financial penalties and ensure the project's timely and legal progression.

See more State Of Michigan Mechanical Permit - US Legal Forms versions

We've got more versions of the State Of Michigan Mechanical Permit - US Legal Forms form. Select the right State Of Michigan Mechanical Permit - US Legal Forms version from the list and start editing it straight away!
Versions Form popularity Fillable & printable
2018 4.2 Satisfied (52 Votes)
2011 4 Satisfied (35 Votes)
be ready to get more

Complete this form in 5 minutes or less

Get form

Got questions?

We have answers to the most popular questions from our customers. If you can't find an answer to your question, please contact us.
Contact us
Eligibility for Licensing Possess at least 4 years of acceptable engineering work experience obtained after having received an acceptable bachelors degree. 3. Pass the Fundamentals of Engineering (FE) examination administered through the National Council of Examiners for Engineering and Surveying (NCEES).
In conclusion, a mechanical license is required, and a royalty is owed whenever a third-party, including a recording label or covering artist, uses a musical composition on a CD, in a vinyl pressing, on an on-demand music streaming platform or as a MP3 download.
Steps to Get an HVAC License in Michigan Acquire three years of experience in one or more of the mechanical contractor classifications. Apply for your Mechanical Contractor License through LARA and pay a $300 application fee. Once approved through the Mechanical Division, pay a testing fee and pass the licensing exam.
Michigan state law allows homeowners to obtain permits to work on their own homes. It is against the law for contractors to perform work under permits obtained by homeowners. The contractor you hire to complete a home construction project should be the person who obtains the permit from the city.
Repairs and maintenance: Minor repair work, including the replacement of lamps or the connection of approved portable electrical equipment to approved permanently installed receptacles.

Security and compliance

At DocHub, your data security is our priority. We follow HIPAA, SOC2, GDPR, and other standards, so you can work on your documents with confidence.

Learn more
ccpa2
pci-dss
gdpr-compliance
hipaa
soc-compliance

People also ask

In the state of Michigan, LARA stands for Licensing and Regulatory Affairs. The Department of Licensing and Regulatory Affairs (LARA) is your go-to place for business licensing across Michigan.
The first option is to reach out directly to the copyright holder, negotiate a contract, sign a written agreement, and pay the licensing fees directly to the songwriter, publisher, or management agency. The easier option is to go through a mechanical licensing service online.

Related links