Form it app 2026

Get Form
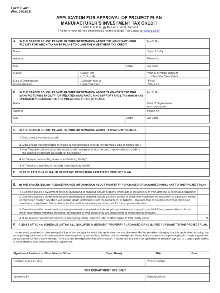
ga form app Preview on Page 1

Here's how it works

01. Edit your ga form app online
Type text, add images, blackout confidential details, add comments, highlights and more.
02. Sign it in a few clicks
Draw your signature, type it, upload its image, or use your mobile device as a signature pad.
03. Share your form with others
Send georgia form app via email, link, or fax. You can also download it, export it or print it out.

How to use or fill out form IT-APP with our platform

Form edit decoration
9.5
Ease of Setup
DocHub User Ratings on G2
9.0
Ease of Use
DocHub User Ratings on G2
  1. Click ‘Get Form’ to open it in the editor.
  2. Begin by filling out Section A, providing details about the manufacturing facility. Enter your Tax ID No., Name, Type of Entity, Address, Phone No., City, State, Zip Code, County, County Tier (1-4), Year(s) you intend to claim the credit, Date of Organization or Incorporation, and whether you are a Calendar Year or Fiscal Year Filer.
  3. Proceed to Section B to provide information about your existing manufacturing facility. Fill in the Tax ID No., Name, Date of Organization or Incorporation, Address, Phone No., City, State, and Zip Code.
  4. In Section C, detail your project by entering the commencement and completion dates. Indicate if you have claimed any tax credits for this project and whether you are constructing or expanding a facility.
  5. Attach a detailed narrative describing your project plan as required in Section D.
  6. Complete Section E by providing information about property purchased or acquired for the project plan. Answer questions regarding pollution control machinery and recycling facilities as applicable.
  7. Finally, ensure all sections are completed accurately before submitting your application for approval.

Start using our platform today to streamline your form completion process for free!

See more form it app versions

We've got more versions of the form it app form. Select the right form it app version from the list and start editing it straight away!
Versions Form popularity Fillable & printable
2021 4.8 Satisfied (35 Votes)
2020 4.4 Satisfied (158 Votes)
2019 4.4 Satisfied (169 Votes)
2017 4.4 Satisfied (223 Votes)
2016 4.1 Satisfied (71 Votes)
2010 4.3 Satisfied (59 Votes)
be ready to get more

Complete this form in 5 minutes or less

Get form

Got questions?

We have answers to the most popular questions from our customers. If you can't find an answer to your question, please contact us.
Contact us
forms. app is secure by design and private by nature.
Google Forms excels in its integration with other Google Workspace tools and its simplicity, making it ideal for users seeking a straightforward solution. On the other hand, forms. app provides more customization options and advanced features, appealing to those who require a more tailored approach.
Jot Form Formstack Forms.io by 500apps Formsite Formbuilder123 Google Forms Zoho Forms Cognito Forms. All the form builder software mentioned above come with a price but help you build good forms. Though all of them are more or less same as far as features are considered but my favorite is Forms .
forms. app takes security seriously, and the team continually tests the security across services. forms. app also has a bug bounty program for security experts out there.
One of the lesser-known apps in the Google Drive online suite is Google Forms. Its an easy, intuitive way to create a web form for other people to enter information into.

Security and compliance

At DocHub, your data security is our priority. We follow HIPAA, SOC2, GDPR, and other standards, so you can work on your documents with confidence.

Learn more
ccpa2
pci-dss
gdpr-compliance
hipaa
soc-compliance

People also ask

forms.apps online form maker will generate answer options for your questions instantly. We know the hard part comes after you collect data. And we are there to assist you with it. Track form submissions in real time, use smart filters to find specific responses and get AI insights about your responses.

Related links