Painting Contract for Contractor - Minnesota 2026

Get Form
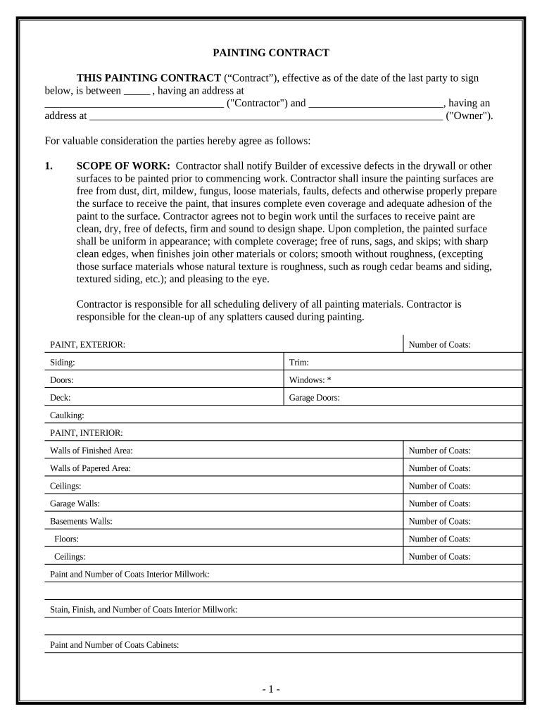
minnesota painter license Preview on Page 1

Here's how it works

01. Edit your minnesota painter license online
Type text, add images, blackout confidential details, add comments, highlights and more.
02. Sign it in a few clicks
Draw your signature, type it, upload its image, or use your mobile device as a signature pad.
03. Share your form with others
Send it via email, link, or fax. You can also download it, export it or print it out.

How to use or fill out Painting Contract for Contractor - Minnesota

Form edit decoration
9.5
Ease of Setup
DocHub User Ratings on G2
9.0
Ease of Use
DocHub User Ratings on G2
  1. Click ‘Get Form’ to open it in the editor.
  2. Begin by filling in the Contractor's name and address at the top of the form. This identifies who will be performing the work.
  3. Next, enter the Owner's name and address. This section is crucial as it specifies who is hiring the contractor.
  4. In the 'SCOPE OF WORK' section, detail any specific requirements for surface preparation and painting. Ensure you check all necessary conditions for a successful job.
  5. Fill out the 'PAINT, EXTERIOR' and 'PAINT, INTERIOR' sections with details about paint types and number of coats required for each area.
  6. Specify the 'WORK SITE' address clearly to avoid any confusion regarding where the work will take place.
  7. Complete sections on 'TIME OF COMPLETION', 'PERMITS', and 'INSURANCE' as these are essential for legal compliance and project management.
  8. Finally, ensure both parties sign and date at the bottom of the contract to validate it legally.

Start using our platform today to easily fill out your Painting Contract for Contractor - Minnesota online, for free!

be ready to get more

Complete this form in 5 minutes or less

Get form

Got questions?

We have answers to the most popular questions from our customers. If you can't find an answer to your question, please contact us.
Contact us
Minnesota. In Minnesota, commercial painters do not require a license. However, painters contracting with homeowners and offering skilled services in more than one areasuch as interior, exterior, and drywall paintingdo require a building contractor or remodeler license.
Within Minnesota, if youre a handyman and you make more than $15,000 per year by working on existing structures, youll need a Residential Remodeler License. If you want to contract to build new structures, youll need a Residential Building License.
Best Contract Types for Different Project Owners Government Owners: Lump Sum (Fixed-Price Contract) Private Developers: Cost-Plus with Guaranteed Maximum Price (GMP) Corporate Institutional Owners: Cost-Plus with Incentives. First-Time Owners: Lump Sum or Unit Price.
Effective March 1, 2025, Minnesota workers in the construction industry who provide commercial or residential building construction or improvement services must satisfy a 14-factor test instead of the previous 9-factor test to be considered independent contractors and therefore exempt from various wage and hour
Who does not need a contractor license? Residential building contractors whose gross annual receipts from their residential activities are less than $15,000 and have a Certificate of Exemption.

Security and compliance

At DocHub, your data security is our priority. We follow HIPAA, SOC2, GDPR, and other standards, so you can work on your documents with confidence.

Learn more
ccpa2
pci-dss
gdpr-compliance
hipaa
soc-compliance

People also ask

Anyone who drives a motor vehicle on public streets or highways in Minnesota must carry a valid and unexpired drivers license.
What to include in your paint contract. Basic contact information. Include space for the name and contact information of your client as well as the contact details of your painting business. The scope of the project. Pricing details. Cancellation and warranty policies. Legal information. Signatures of both parties.

Related links