Realty Transfer Certificate (RTC) - Sanders County 2026

Get Form
Realty Transfer Certificate (RTC) - Sanders County Preview on Page 1

Here's how it works

01. Edit your form online
Type text, add images, blackout confidential details, add comments, highlights and more.
02. Sign it in a few clicks
Draw your signature, type it, upload its image, or use your mobile device as a signature pad.
03. Share your form with others
Send it via email, link, or fax. You can also download it, export it or print it out.

Definition & Meaning

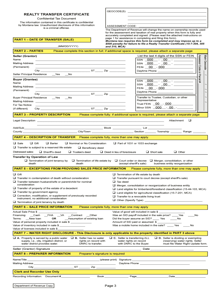
The Realty Transfer Certificate (RTC) - Sanders County is a crucial document involved in the process of transferring real property ownership within Sanders County, Montana. It serves as a confidential tax form that includes detailed information about the property transfer, designed to ensure compliance with state tax laws. The RTC outlines important aspects such as the identities of the parties involved, the property description, sale price, and any applicable water rights disclosures. The primary function of this certificate is to provide a formal record of the transaction, aiding in the accurate reporting and tax assessment related to real estate transfers.

How to Use the Realty Transfer Certificate (RTC) - Sanders County

To effectively utilize the RTC in Sanders County, individuals involved in property transactions must follow specific procedures. Here’s a step-by-step guide:

  1. Identify Required Information: Gather all necessary details such as property addresses, legal descriptions, and the names of parties involved in the transaction. Make sure to include any water rights or additional disclosures required by Montana law.

  2. Complete the Form: Fill out the RTC meticulously, ensuring accuracy in all fields. This includes details about the sale price and any applicable financial considerations.

  3. Submit in Conjunction with Deed: The RTC must be submitted alongside the deed at the Sanders County Clerk and Recorder's Office. This step is crucial for finalizing the property transfer under Montana regulations.

  4. Ensure Confidentiality: Remember that the RTC is a confidential tax document; handle it with appropriate discretion to protect sensitive financial information.

How to Obtain the Realty Transfer Certificate (RTC) - Sanders County

Obtaining the RTC involves understanding the local procedures for acquiring and accessing this document. Here's how you can proceed:

  • Visit the Clerk and Recorder's Office: The RTC can be obtained directly from the Sanders County Clerk and Recorder's Office. This provides an opportunity to ask any specific questions about filling out the form.

  • Access Online Resources: In some cases, forms are available for download from the official county website, offering a convenient option to access the document at your convenience.

  • Consult Real Estate Professionals: Real estate agents and attorneys familiar with Montana's property laws can provide the RTC and guidance on accurately completing it.

Steps to Complete the Realty Transfer Certificate (RTC) - Sanders County

Filling out the RTC requires careful attention to detail to ensure compliance with tax regulations. Follow these steps:

  1. Provide Personal and Property Details: Input the names, addresses, and contact information of both the buyer and seller. Ensure the property's legal description is accurate.

  2. Report Financial Aspects: Record the sale price and outline any conditions of the transaction, reflecting the true and fair market value.

  3. Disclose Water Rights and Additional Information: If applicable, disclose any water rights associated with the property, as these can affect its valuation and transferability.

  4. Review for Accuracy and Completeness: Before submission, review the form for accuracy to prevent any discrepancies that might lead to filing delays or penalties.

Key Elements of the Realty Transfer Certificate (RTC) - Sanders County

A detailed understanding of the key elements included in the RTC helps ensure compliance and accuracy. Significant components consist of:

  • Transaction Details: Includes the sale date, price, and conditions of sale, which are pivotal for tax purposes.

  • Party Information: Details of all parties involved, providing documentation for legal and tax records.

  • Property Description: A complete and precise description of the property, including any land parcels and structures.

  • Tax Declaration: Statements related to the disclosure of any Montana source income gained from this property transaction.

Legal Use of the Realty Transfer Certificate (RTC) - Sanders County

The legal purpose of the RTC is to comply with Montana state tax legislation, requiring a documented record of property transfers. Failing to file an accurate and complete RTC can result in penalties, emphasizing its significance for both legal and financial responsibilities connected to real estate transactions.

  • Provide Accurate Records: The RTC serves as a legal instrument to furnish accurate records to the legal entities concerned with maintaining state revenue systems.

  • Ensure Confidentiality: The document protects confidential information related to property sales, mitigating potential financial scrutiny from unauthorized parties.

Penalties for Non-Compliance

Non-compliance with the required filing of the RTC can lead to serious repercussions. It is essential to adhere strictly to the process to avoid:

  • Financial Penalties: Monetary fines may be imposed for failing to file or submitting incorrect information.

  • Legal Consequences: Further legal actions could be initiated if there's a significant delay or intentional misrepresentation in the RTC filings.

Understanding these consequences underscores the importance of accuracy and timeliness when completing and submitting the Realty Transfer Certificate in Sanders County.

Filing Deadlines / Important Dates

Timely submission is crucial to avoid penalties. Key deadlines include:

  1. Within 30 Days of Transfer: Typically, the RTC must be filed within thirty days of the property transaction. Adhering to this timeline helps ensure compliance and avoid penalties.

  2. Alignment with Deed Submission: Make sure the RTC is filed concurrently with the property deed to streamline processing and avoid potential delays.

Understand these critical dates to facilitate a smooth filing process, ensuring all legal requirements are met promptly and effectively within the specified framework.

See more Realty Transfer Certificate (RTC) - Sanders County versions

We've got more versions of the Realty Transfer Certificate (RTC) - Sanders County form. Select the right Realty Transfer Certificate (RTC) - Sanders County version from the list and start editing it straight away!
Versions Form popularity Fillable & printable
2021 4.8 Satisfied (204 Votes)
2020 4.3 Satisfied (70 Votes)
2013 4.1 Satisfied (34 Votes)
be ready to get more

Complete this form in 5 minutes or less

Get form

Got questions?

We have answers to the most popular questions from our customers. If you can't find an answer to your question, please contact us.
Contact us
Unlike many other states, Montana does not have a real estate transfer tax on real estate transactions, which can alleviate some of the financial burden on sellers or buyers.
Montana is one of 15 states that does NOT have a real estate transfer tax, but, instead, parties to a Montana real estate transaction must file a Realty Transfer Certificate, required by Montana law.
What is a Certificate of Transfer? When a person dies owning real estate, the probate court issues a Certificate of Transfer to transfer the property to the heirs. In essence, a Certificate of Transfer is the probate courts version of a deed which is filed in the recorders office.
Transfer Tax is 1% to the State and 1% to the Local Municipality with the following Municipality exceptions: Radnor Township 1.5% Upper Darby Township 1.5% (effective 1/1/2022)
A transfer tax is charged by a state or local government to complete a sale of property from one owner to another. The tax is typically based on the value of the property. A federal or state inheritance tax or estate tax may be considered a type of transfer tax.

Security and compliance

At DocHub, your data security is our priority. We follow HIPAA, SOC2, GDPR, and other standards, so you can work on your documents with confidence.

Learn more
ccpa2
pci-dss
gdpr-compliance
hipaa
soc-compliance

People also ask

Montana generally follows the same exclusion rules as the IRS, allowing $250,000 of gain on home sales ($500,000 for married joint filers), if they owned and used the home as their principal residence for two out of the five years before the sale.
Montana follows federal rules for the primary home sale exclusion, so any federally excluded gain is also excluded from your Montana taxable income. Any remaining gain is taxable at the state level.

Related links