Framing Contract for Contractor - Iowa 2026

Get Form
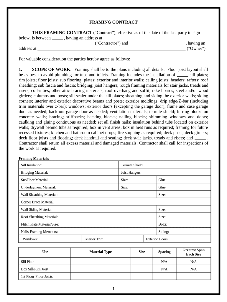
Framing Contract for Contractor - Iowa Preview on Page 1

Here's how it works

01. Edit your form online
Type text, add images, blackout confidential details, add comments, highlights and more.
02. Sign it in a few clicks
Draw your signature, type it, upload its image, or use your mobile device as a signature pad.
03. Share your form with others
Send it via email, link, or fax. You can also download it, export it or print it out.

How to use or fill out Framing Contract for Contractor - Iowa with our platform

Form edit decoration
9.5
Ease of Setup
DocHub User Ratings on G2
9.0
Ease of Use
DocHub User Ratings on G2
  1. Click ‘Get Form’ to open the Framing Contract for Contractor - Iowa in the editor.
  2. Begin by filling in the Contractor's name and address at the top of the form. This identifies who will be performing the work.
  3. Next, enter the Owner's name and address. This section specifies who is hiring the contractor.
  4. In the 'SCOPE OF WORK' section, detail all framing tasks to be completed, ensuring clarity on materials and methods.
  5. Fill out the 'WORK SITE' information, including the property location where work will take place.
  6. Specify timelines in 'TIME OF COMPLETION', indicating when work will start and expected completion dates.
  7. Complete sections on permits, insurance, and any changes to scope as necessary, ensuring compliance with local regulations.
  8. Finally, review all entries for accuracy before signing. Both parties should sign and date at the bottom of the contract.

Start using our platform today to streamline your document editing and signing process for free!

be ready to get more

Complete this form in 5 minutes or less

Get form

Got questions?

We have answers to the most popular questions from our customers. If you can't find an answer to your question, please contact us.
Contact us
Essential Elements of a Service Agreement Template: A Detailed and Actionable Guide Identifying the Parties Involved. Defining the Scope of Services. Establishing Payment Terms. Setting Contract Duration. Outlining Termination Conditions. Protecting Confidential Information. Addressing Dispute Resolution.
Seven Things to Never Say to a Contractor Never Tell a Contractor They are the Only One Bidding on the Job. Dont Tell a Contractor Your Budget. Never Ask a Contractor for a Discount if You Pay Upfront. Dont Tell a Contractor That You Arent in A Hurry. Do Not Let a Contractor Choose the Materials.
What to avoid in construction contracts Unclear scope of work and specifications: An ambiguous scope of work can cause misinterpretation. Missing change order procedures: Not having change order procedures is a risk as construction projects rarely go exactly ing to plan.
Its not unusual. If you are not comfortable tell them you are willing to do 50% upon delivery of materials, balance upon completion.
Iowa law requires all individual Construction Contractors and businesses performing construction work to be registered with the Department of Inspections, Appeals, and Licensing (DIAL) if they earn at least $2,000 a year from construction.

Security and compliance

At DocHub, your data security is our priority. We follow HIPAA, SOC2, GDPR, and other standards, so you can work on your documents with confidence.

Learn more
ccpa2
pci-dss
gdpr-compliance
hipaa
soc-compliance

People also ask

Below are eight important points to consider including in an independent contractor agreement. Define a Scope of Work. Set a Timeline for the Project. Specify Payment Terms. State Desired Results and Agree on Performance Measurement. Detail Insurance Requirements. Include a Statement of Independent Contractor Relationship.
Can I write my own contract? Yes, you can write your own contract.
Write the contract in six steps Start with a contract template. Open with the basic information. Describe in detail what you have agreed to. Include a description of how the contract will be ended. Write into the contract which laws apply and how disputes will be resolved. Include space for signatures.

Related links