Form IT-238 Claim for Rehabilitation of Historic Properties Credit Tax Year 2025-2026

Get Form
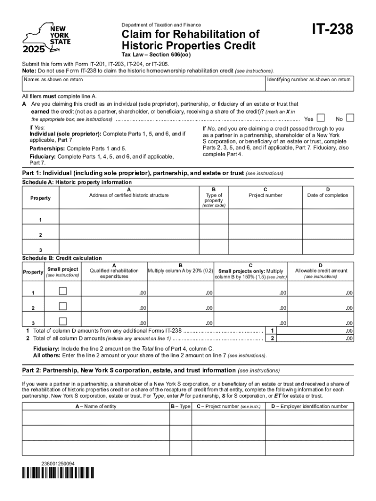
Form IT-238 Claim for Rehabilitation of Historic Properties Credit Tax Year 2025 Preview on Page 1

Here's how it works

01. Edit your form online
Type text, add images, blackout confidential details, add comments, highlights and more.
02. Sign it in a few clicks
Draw your signature, type it, upload its image, or use your mobile device as a signature pad.
03. Share your form with others
Send it via email, link, or fax. You can also download it, export it or print it out.

Definition and Meaning

The "Form IT-238 Claim for Rehabilitation of Historic Properties Credit Tax Year 2025" is a specialized form utilized by taxpayers in the United States to claim a tax credit for the rehabilitation of historic properties. This tax incentive is designed to encourage the preservation of America's architectural heritage by offering financial benefits to those who invest in restoring historical structures. Under Tax Law Section 606(oo), residents must submit this form alongside other necessary tax documents, such as IT-201, IT-203, IT-204, or IT-205, to qualify for the credit. The primary goal of this form is to facilitate the claiming process for tax benefits associated with the expenditures on qualifying historic property rehabilitation projects conducted during the specified tax year.

Eligibility Criteria

To qualify for the historic properties rehabilitation credit via Form IT-238, taxpayers must ensure they meet certain requirements:

  • Designation of Property: The property must be listed in the National Register of Historic Places or located in a registered historic district.
  • Project Approval: The rehabilitation plan must be reviewed and approved by the appropriate state historic preservation office.
  • Expenditure Threshold: The project should meet a minimum threshold of qualified rehabilitation expenditures, typically a percentage of the property's adjusted basis.
  • Timing: The rehabilitation must be completed within a specified timeframe to align with the tax year's credit claim.

Consideration of these criteria helps ensure compliance and maximizes the likelihood of successfully securing the credit.

decoration image ratings of Dochub

How to Use the Form IT-238

To effectively utilize Form IT-238, taxpayers should follow these guidelines:

  1. Gather Documentation: Collect all necessary documents that detail the rehabilitation expenses, including invoices, contracts, and approval letters from the state preservation office.
  2. Fill the Form: Accurately enter information regarding the property, the nature of the rehabilitation work, and the total expenditures incurred.
  3. Calculate the Credit: Use the data to compute the allowable credit amount, adhering to the credit percentage specified by the Tax Law.
  4. Attach Supporting Documents: Include all supporting documentation with your tax submission to substantiate the credit claim.

Attention to detail in each step ensures a smooth and compliant filing process.

Key Elements of the Form IT-238

Several critical elements are outlined within Form IT-238, which users must address:

  • Property Information: Details about the historic property, including the address and designation status.
  • Expenditure Breakdown: A comprehensive list of all costs related to the rehabilitation activities.
  • Certification Details: Information proving compliance with historic preservation standards.
  • Calculation of Credit: The section where the actual credit amount is determined based on eligible expenditures.

These components form the backbone of the form and directly impact the approval of the tax credit.

Steps to Complete the Form IT-238

Completing Form IT-238 involves several steps:

  1. Review Eligibility: Verify that the property and rehabilitation work meet the necessary criteria.
  2. Complete Sections: Fill out sections sequentially, providing precise and accurate information.
  3. Attach Documents: Ensure all essential documentation that supports the form's claims is appended.
  4. Double-Check Entries: Carefully recheck all information to avoid errors or omissions.
  5. Submit: Integrate the completed form into your tax return package and submit it by the filing deadline.

Executing each step with care guarantees a well-documented and credible credit claim.

Who Typically Uses the Form IT-238

The form is primarily used by:

  • Property Owners: Individuals or entities owning historic properties and undertaking approved rehabilitation projects.
  • Developers: Those engaged in the rehabilitation of historic buildings for commercial or residential use.
  • Non-Profit Organizations: Institutions involved in the restoration of historic sites as part of their conservation efforts.

Understanding the user's profile aids in tailoring the form's completion and submission.

decoration image

Required Documents

When filing Form IT-238, ensure to prepare and include:

  • Receipts and Invoices: Authenticate expenses incurred during the rehabilitation.
  • Historic Preservation Certification: Proof of project approval from relevant authorities.
  • Contracts and Agreements: Documentation of the work scope and contractor details.
  • Photographs: Before and after images of the rehabilitation effort to visually support claims.

These documents provide tangible evidence supporting the form's information.

Filing Deadlines and Important Dates

Taxpayers must adhere to specific timelines:

  • Filing Deadline: The form must be filed in conjunction with the annual tax return, typically due in April of the following year.
  • Certification Dates: Acquisition of necessary approvals and certifications should align with the planned submission timeline.

Staying informed about these timelines ensures compliance and avoids penalties.

Penalties for Non-Compliance

Failure to accurately complete and timely submit Form IT-238 can result in:

  • Denial of Credit: Incomplete or incorrect submissions may lead to dismissal of the credit claim.
  • Financial Penalties: In some cases, incorrect filings might incur fines or necessitate repayment of credits.
  • Audits: Non-compliance can trigger more rigorous audits, requiring exhaustive documentation.

Proactive adherence to form requirements mitigates these risks.

be ready to get more

Complete this form in 5 minutes or less

Get form

Security and compliance

At DocHub, your data security is our priority. We follow HIPAA, SOC2, GDPR, and other standards, so you can work on your documents with confidence.

Learn more
ccpa2
pci-dss
gdpr-compliance
hipaa
soc-compliance
be ready to get more

Complete this form in 5 minutes or less

Get form