Tenant occupied property addendum 2026

Get Form
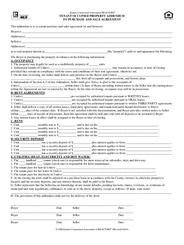
tenant occupied property addendum Preview on Page 1

Here's how it works

01. Edit your tenant occupied property addendum online
Type text, add images, blackout confidential details, add comments, highlights and more.
02. Sign it in a few clicks
Draw your signature, type it, upload its image, or use your mobile device as a signature pad.
03. Share your form with others
Send it via email, link, or fax. You can also download it, export it or print it out.

Definition & Meaning of Tenant Occupied Property Addendum

A tenant occupied property addendum is a legal document that accompanies an Agreement of Sale, specifying the terms and conditions related to properties that are currently leased to tenants. It outlines the seller's obligations to provide vital information about existing lease agreements and security deposits to the buyer. This addendum is crucial in ensuring transparency between parties during a property transaction, as it details what the buyer should expect regarding the tenant's rights and the ongoing rental agreements.

In essence, this addendum serves multiple purposes: it helps protect the rights of the tenant, ensures the seller fulfills their duties, and provides the buyer with critical insights into the financial and operational aspects of managing the property post-purchase. By outlining expectations clearly, it minimizes the risk of disputes arising from miscommunication or incomplete information.

Key Elements of the Tenant Occupied Property Addendum

The tenant occupied property addendum includes several essential components that both sellers and buyers must be aware of:

  • Lease Agreements: The addendum should specify which lease agreements are associated with the property. This includes details such as the term of the leases, monthly rent amounts, and any special conditions that may apply.

  • Security Deposits: It should outline how security deposits are handled. This includes information on the amount held, the terms of return, and the condition under which deductions may be made.

  • Tenant Notification: The seller must communicate any changes in ownership to the tenants, ensuring they are aware of new management practices or procedures they will need to follow.

  • Buyer's Options: The document details the buyer's rights once they receive the lease agreements and security deposit details. For example, the buyer may choose to accept the property under existing terms, renegotiate, or even terminate the sale if the provided information is not satisfactory.

  • Effective Date: Establishing when the addendum takes effect is critical. This should coincide with the closing date of the property sale.

Understanding these key elements helps both parties navigate their respective rights and responsibilities, ultimately leading to a smoother transaction and transition.

Steps to Complete the Tenant Occupied Property Addendum

Successfully completing a tenant occupied property addendum involves several clear steps:

  1. Gather Information: Collect documents relating to existing tenant leases, security deposits, and any prior communications regarding the property. This may include payment history and lease renewal terms.

  2. Complete the Addendum: Fill out the addendum with required details, ensuring it includes all necessary information about lease agreements, security deposits, and tenant notifications.

  3. Review & Sign: Both the seller and buyer should review the completed addendum thoroughly. Each party must sign and date the document, indicating their agreement to the terms outlined.

  4. Distribute Copies: After signing, distribute copies of the completed addendum to all relevant parties, including tenants if required. This ensures everyone is informed of their rights and responsibilities.

  5. Retain for Records: Both parties should keep a copy of the signed addendum for their records, as this document may be needed for future reference or legal purposes.

Following these steps ensures that the document is accurately completed, which is essential for effective property transfer.

Importance of the Tenant Occupied Property Addendum

Using a tenant occupied property addendum is vital for several reasons:

  • Protection of Rights: It safeguards the rights of both tenants and new property owners, clarifying obligations and expectations from the outset.

  • Avoids Disputes: By outlining responsibilities and procedures in clear terms, it helps prevent misunderstandings that could lead to legal disputes down the line.

  • Transparency in Transactions: The addendum promotes transparency by ensuring that the buyer receives all essential information about the property’s rental agreements and tenant situations.

  • Facilitates Smooth Transition: It helps facilitate a smoother transition for both the seller and the buyer by detailing what will happen with existing tenants and their properties.

Overall, the tenant occupied property addendum plays a crucial role in protecting all parties involved in a property sale and ensuring a clear understanding of the terms of the transaction.

Legal Use of the Tenant Occupied Property Addendum

The proper legal use of a tenant occupied property addendum is critical to ensure that all parties adhere to required laws and standards. Key legal considerations include:

  • Compliance with Local Laws: The addendum must comply with relevant federal, state, and local housing laws. This might include regulations surrounding tenant's rights, eviction processes, and property management obligations.

  • Clarity of Terms: The language used in the addendum should be clear and concise to avoid misinterpretation. Ambiguities in wording can lead to legal disputes.

  • Signatures: The addendum should be signed by all parties involved in the transaction to be considered legally binding. This includes both the seller and the buyer.

  • Retention of Records: It is important to retain records of the addendum for a specified period, typically governed by state laws. This can be crucial if any disputes arise later regarding the transaction.

Ensuring that the tenant occupied property addendum is legally robust is essential to protect the interests of all parties, render agreements enforceable, and provide clarity and transparency throughout the sale process.

be ready to get more

Complete this form in 5 minutes or less

Get form

Got questions?

We have answers to the most popular questions from our customers. If you can't find an answer to your question, please contact us.
Contact us
Lease addendums are used to provide additional information that the original lease does not cover. In other words, a lease addendum allows you to add an additional document to or adjust the terms of your existing rental agreement.
A real estate addendum modifies an original lease or purchase agreement. Items in the addendum could reflect a change in the agreed-upon price, what is included in the transfer of property, what improvements must be made before the home is paid for, or any other agreed-upon requests or responsibilities.
An additional tenant lease addendum is a document that adds a tenant to an existing rental agreement. The form allows the new tenant to occupy the property for the rest of the lease term.
Yes, someone can live in a house without being on the lease, but there are important considerations: Permission from the Leaseholder: The primary leaseholder (the person whose name is on the lease) must give permission for the person to live there. This is often referred to as a guest or unauthorized occupant.
An addendum may also be as simple as a buyer request that certain appliances -- such as the refrigerator, the washer or dryer -- remain in the home. Another example of an addendum is one that includes contingencies.

Security and compliance

At DocHub, your data security is our priority. We follow HIPAA, SOC2, GDPR, and other standards, so you can work on your documents with confidence.

Learn more
ccpa2
pci-dss
gdpr-compliance
hipaa
soc-compliance
be ready to get more

Complete this form in 5 minutes or less

Get form

People also ask

What does tenant occupied mean? Tenant occupied means that a tenant currently lives in the property and has a lease agreement with the landlord. It is common for real estate listings to specify whether a property is a tenant occupied or not, as this can be an important factor for potential buyers.

Related links