Petition to Value Adjustment Board - Request for Hearing 2026

Get Form
Petition to Value Adjustment Board - Request for Hearing Preview on Page 1

Here's how it works

01. Edit your form online
Type text, add images, blackout confidential details, add comments, highlights and more.
02. Sign it in a few clicks
Draw your signature, type it, upload its image, or use your mobile device as a signature pad.
03. Share your form with others
Send it via email, link, or fax. You can also download it, export it or print it out.

Definition and Meaning

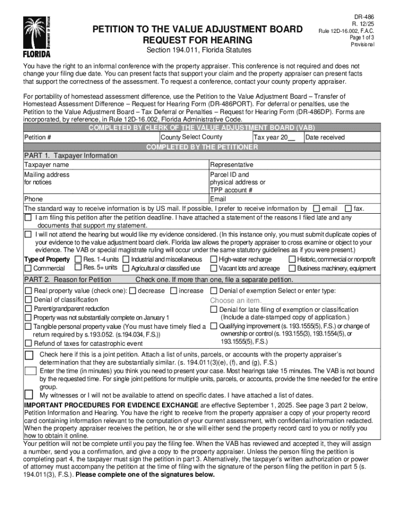
The "Petition to Value Adjustment Board - Request for Hearing" is a formal document used to officially request a hearing with the Value Adjustment Board (VAB) to dispute property tax assessments in the United States. This petition can be filed by property owners seeking to adjust a perceived incorrect property valuation by their local tax assessor. The VAB operates within the framework of property tax laws, providing a platform for taxpayers to challenge assessment discrepancies. By filing this petition, individuals or business entities can formally contest their property tax valuations and seek equitable adjustments.

Steps to Complete the Petition to Value Adjustment Board - Request for Hearing

  1. Obtain the Form: Access the form through your local tax office or online portal associated with the county tax assessor's website.

  2. Review Property Assessment Details: Thoroughly review the property assessment notice received to verify the valuation details.

  3. Complete the Form:

    • Property Information: Enter detailed information about your property, including parcel number, property type, and location.
    • Owner Details: Provide comprehensive owner information, such as name, address, and contact details.
    • Reason for Petition: Clearly outline the grounds for challenging the assessment, specifying errors or discrepancies.
  4. Compile Supporting Documents: Gather necessary documentation, such as recent appraisals, photographs, or sales data supporting your claim.

  5. Submit the Form: File the petition with the appropriate local authority, ensuring compliance with submission deadlines and additional requirements.

Why Petition the Value Adjustment Board?

Petitioning the VAB is essential for property owners who believe their property has been assessed at an inaccurate value. Reasons to pursue a petition may include:

  • Discrepancies in Property Valuation: Resolve issues arising from incorrect property size, usage classification, or erroneous data leading to miscalculated assessments.

  • Overvaluation: Address instances where assessed value exceeds true market value, resulting in an inflated tax burden.

  • Exemptions and Errors: Clarify tax exemptions or rectify clerical errors impacting overall tax calculations.

This hearing offers a formal avenue to dispute assessments and achieve a fair valuation reflective of actual property conditions, ultimately leading to potential tax savings.

Who Typically Uses the Petition to Value Adjustment Board?

The petition is utilized by a diverse range of individuals and entities, including:

  • Homeowners: Individuals seeking adjustments to residential property assessments.
  • Commercial Property Owners: Business entities challenging assessments of commercial or industrial properties to ensure tax efficiency.
  • Real Estate Investors: Investors aiming to maximize returns by ensuring fair property valuations in their portfolios.
  • Legal and Tax Professionals: Assisting clients in navigating the complex legal framework surrounding property tax disputes.
decoration image ratings of Dochub

Key Elements of the Petition to Value Adjustment Board

  • Comprehensive Identification: Accurate property and owner identification to ensure proper handling of the petition.
  • Clear Statement of Appeal: Specific, concise articulation of the reasons for contesting the current property valuation.
  • Documentation: Inclusion of relevant supporting documents that substantiate claims, such as recent property sales within the vicinity, repair estimates, or comparative analyses.
  • Compliance with Deadlines: Adhering to filing deadlines is imperative to ensure the right to appeal is maintained.

State-Specific Rules for the Petition to Value Adjustment Board

The procedural aspects and requirements for petitioning the VAB can differ across states due to local regulations. Variations may include:

  • Submission Deadlines: Each state, and oftentimes counties within states, have specific filing deadlines which must be adhered to avoid forfeiture of appeal rights.
  • Fees: Some jurisdictions may require a nominal filing fee, which can vary based on property type or assessment value.
  • Hearing Procedures: Differences in the structure and process of hearings, including requirements for legal representation or personal appearances.

Familiarizing oneself with local statutes is crucial to successfully navigating the petition process.

Form Submission Methods

The versatility of submission methods available for the petition ensures accessibility for all petitioners, facilitating the following options:

  • Online: Many local tax jurisdictions offer portals for electronic submissions, enhancing convenience and efficiency.
  • Mail: Traditional paper submissions are accepted where electronic filing is not mandated.
  • In-Person: Physical submission at designated county offices for immediate acknowledgment and assistance.

Ensuring submission via approved methods maintains process integrity and ensures timely processing.

Required Documents for Submission

To ensure a comprehensive appeal, the following documents are generally necessary:

  • Recent Property Appraisals: Third-party evaluations providing an objective property value estimate.
  • Sales Comparisons: Evidence of similar property sales to support contested valuation.
  • Photographic Evidence: Visual documentation of property condition or features affecting valuation.
  • Previous Tax Records: Historical tax documents that highlight discrepancies or inconsistencies.

Meticulous preparation of these documents fortifies the petition and aids in the advocacy for a favorable outcome.

Important Deadlines for Filing

Adhering to critical timelines is paramount in the petitioning process. Key deadlines typically include:

  1. Initial Assessment Notification: Typically received annually, marking the start of the petition window.
  2. Filing Deadline: Generally set within a specific period following assessment notice receipt, often ranging from 25 to 60 days.
  3. Hearing Scheduling: Post-submission, hearings are scheduled based on local board availability, with formal dates communicated in advance.

Failure to meet these deadlines can invalidate a petition, underscoring the importance of timely action.

be ready to get more

Complete this form in 5 minutes or less

Get form

Security and compliance

At DocHub, your data security is our priority. We follow HIPAA, SOC2, GDPR, and other standards, so you can work on your documents with confidence.

Learn more
ccpa2
pci-dss
gdpr-compliance
hipaa
soc-compliance
be ready to get more

Complete this form in 5 minutes or less

Get form