CONTRACTOR'S REQUEST FOR PROGRESS PAYMENT ... 2026

Get Form
construction progress payments example Preview on Page 1

Here's how it works

01. Edit your construction progress payments example online
Type text, add images, blackout confidential details, add comments, highlights and more.
02. Sign it in a few clicks
Draw your signature, type it, upload its image, or use your mobile device as a signature pad.
03. Share your form with others
Send progress billing for construction sample via email, link, or fax. You can also download it, export it or print it out.

How to use or fill out CONTRACTOR'S REQUEST FOR PROGRESS PAYMENT with our platform

Form edit decoration
9.5
Ease of Setup
DocHub User Ratings on G2
9.0
Ease of Use
DocHub User Ratings on G2
  1. Click ‘Get Form’ to open the CONTRACTOR'S REQUEST FOR PROGRESS PAYMENT in the editor.
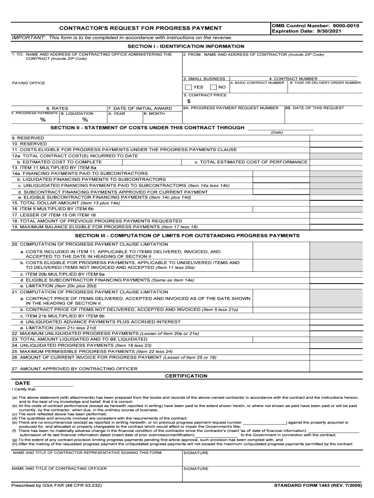
  2. In Section I, provide your identification information. Enter the name and address of the contracting office administering the contract in item 1, and your own details in item 2. Indicate if you are a small business in item 3.
  3. Complete items 4 through 8b by entering the contract number, total contract price, progress payment rates, and dates as required. Ensure all dollar amounts are rounded consistently.
  4. Move to Section II to detail costs under the contract. Fill out items related to costs eligible for progress payments and provide estimates for total costs incurred and remaining work.
  5. In Section III, compute limits for outstanding progress payments based on delivered items and any advance payments received. Complete all necessary calculations accurately.
  6. Finally, certify your request by signing at the bottom of the form, ensuring all statements are accurate and complete before submission.

Start using our platform today to streamline your document editing and submission process for free!

See more CONTRACTOR'S REQUEST FOR PROGRESS PAYMENT ... versions

We've got more versions of the CONTRACTOR'S REQUEST FOR PROGRESS PAYMENT ... form. Select the right CONTRACTOR'S REQUEST FOR PROGRESS PAYMENT ... version from the list and start editing it straight away!
Versions Form popularity Fillable & printable
2021 4.8 Satisfied (263 Votes)
2009 4.4 Satisfied (45 Votes)
be ready to get more

Complete this form in 5 minutes or less

Get form

Got questions?

We have answers to the most popular questions from our customers. If you can't find an answer to your question, please contact us.
Contact us

Yes, you can use DocHub for signing any business and personal paperwork, including your progress billing sample. All electronic signatures you create with our service are legally binding and court-admissible, as DocHub complies with standards required by ESIGN and UETA. Save your completed form with a detailed Audit Trail if needed.

Apart from an extensive toolset for editing PDFs on mobile devices, DocHub allows you to sign your construction billing request letter sample along the way. Open our editor in your web browser, make changes using DocHub’s toolset, and complete your editing by eSigning the completed form.

Progress Billing: How to Do It Negotiate the Initial Contract. Create a Progress Timeline. Identify Progress Milestones. Issuing Progress Invoices. Confirm Ongoing Completion of Work. Address Changes in the Scope of Work. Finalizing the Project.
Typically used for large-scale construction projects, progress billing is a type of invoice that bills for work completed along the way. Instead of invoicing at the end of a project, progress billing occurs incrementally as the project advances.
What Is a Progress Payment? In the construction industry, a progress payment is a partial payment made to a business or contractor after the completion of a predefined stage of work for example, a demolition or the addition of a roof and siding.

Security and compliance

At DocHub, your data security is our priority. We follow HIPAA, SOC2, GDPR, and other standards, so you can work on your documents with confidence.

Learn more
ccpa2
pci-dss
gdpr-compliance
hipaa
soc-compliance
be ready to get more

Complete this form in 5 minutes or less

Get form

People also ask

If progress payments are to be made, they should be made not more frequently than monthly in arrears or at clearly identifiable stages of progress, based upon written progress reports submitted with the contractors invoices. Progress payments shall not be made in advance of delivery or acceptance of goods or services.
In the construction industry, a progress payment is a partial payment made to a business or contractor after the completion of a predefined stage of work for example, a demolition or the addition of a roof and siding.
Progress payments must be commensurate with the fair value of work accomplished in ance with contract requirements. The contracting officer must adjust progress payments when necessary to ensure that the fair value of undelivered work equals or exceeds the amount of unliquidated progress payments.
Progress billing is calculated on a to-date basis by multiplying the projects percentage complete by the total project price. As it meets milestones, the contractor submits an invoice for completed work. As long as the customer is satisfied with the quality of the product, it makes the payment.
Select the Financial tab and click New Progress Invoice. Under Options, for Invoice Type, select an option: For progress amount / deposit, enter the payment amount. For % of the quoted value, enter the percentage of the quoted amount that you want to invoice.

progress billing request letter