Form IT-238 Claim for Rehabilitation of Historic Properties Credit Tax Year 2024-2026

Get Form
Form IT-238 Claim for Rehabilitation of Historic Properties Credit Tax Year 2024 Preview on Page 1

Here's how it works

01. Edit your form online
Type text, add images, blackout confidential details, add comments, highlights and more.
02. Sign it in a few clicks
Draw your signature, type it, upload its image, or use your mobile device as a signature pad.
03. Share your form with others
Send it via email, link, or fax. You can also download it, export it or print it out.

Definition & Meaning

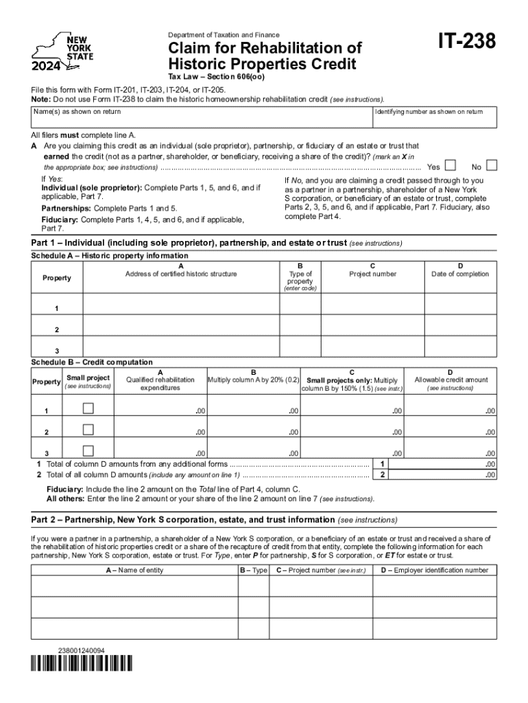
The Form IT-238, known as the "Claim for Rehabilitation of Historic Properties Credit," is a form issued by the New York Department of Taxation and Finance. It allows individuals, partnerships, and fiduciaries to claim credits for qualified rehabilitation expenditures on certified historic structures under Tax Law Section 606(oo). This credit is designed to incentivize the restoration and preservation of historic properties, providing financial relief for those who invest in maintaining the historical integrity of these buildings.

Examples of eligible structures include:

  • Residential buildings listed on the National Register of Historic Places.
  • Commercial properties designated as contributing to historic districts.
  • Landmarks recognized by local preservation ordinances.

How to Use the Form IT-238

Using Form IT-238 involves reporting your qualified rehabilitation expenditures. This requires detailed documentation of expenses incurred during the rehabilitation of a certified historic structure. The primary purpose of this form is to calculate your allowable tax credit, which can then be applied against your New York State income tax liability for the year 2024.

Steps to use the form include:

  1. Gather documentation of eligible rehabilitation costs.
  2. Ensure your property is certified historic.
  3. Calculate the proportionate credit based on qualified expenditures.
  4. Complete the form, detailing all necessary financial information.

Steps to Complete the Form IT-238

Filling out the IT-238 requires careful attention to detail and adherence to section-specific requirements:

  1. Parts Identification: Begin by entering taxpayer identification and relevant property information.
  2. Credit Computation: List and verify all qualified rehabilitation expenses.
  3. Partner or Beneficiary Shares: If applicable, designate credit shares among partners or fiduciaries.
  4. Final Adjustment and Credits Application: Compute the total credit and apply it within specified limits against your tax liabilities.

Who Typically Uses the Form IT-238

Those who are typically required to use Form IT-238 include:

  • Homeowners who renovated a historic home for personal residence.
  • Real estate developers investing in the refurbishment of commercial spaces within historic districts.
  • Trusts and estates managing properties of historical significance.

These users tend to engage in activities aimed at preserving the cultural heritage of historic properties while benefiting from financial incentives.

decoration image ratings of Dochub

Key Elements of the Form IT-238

Crucial components of this tax form include:

  • Taxpayer Information: Information like name, address, and taxpayer ID.
  • Qualified Expenditures: Detailed disclosure of costs that qualify for the credit, such as architectural enhancements or structural repairs.
  • Credit Allocation: Information regarding the distribution of credits among eligible stakeholders.

These elements ensure compliance with New York State's taxation and finance regulations.

Eligibility Criteria

Eligibility for claiming the Rehabilitation of Historic Properties Credit requires compliance with several criteria:

  • The property must be certified historic according to state or national registers.
  • The rehabilitation project must comply with provisions outlined in Tax Law Section 606(oo).
  • Expenditures must meet the minimum threshold to qualify as 'qualified rehabilitation expenses.'

Examples include renovations that maintain the exterior facade according to preservation guidelines or enhancements that restore historical architectural details.

decoration image

Filing Deadlines / Important Dates

For the 2024 tax year, it is imperative to be aware of critical filing deadlines:

  • Initial submissions of Form IT-238 should coincide with the annual tax return deadline, typically by April 15th.
  • Extensions may be filed if additional time is needed, but must be requested before the official deadline.

Missing these deadlines could result in penalties or a forfeiture of the credit for the respective tax year.

Important Terms Related to Form IT-238

Familiarize yourself with these essential terms:

  • Certified Historic Structure: A building deemed historically significant under preservation standards.
  • Qualified Rehabilitation Expenditures: Costs that count toward the credit, excluding land acquisition or interior furnishings.
  • Credit Allocation: The process of distributing the available credit among stakeholders.

Each term plays a vital role in understanding the form's comprehensive requirements and potential benefits.

be ready to get more

Complete this form in 5 minutes or less

Get form

Got questions?

We have answers to the most popular questions from our customers. If you can't find an answer to your question, please contact us.
Contact us
This tax credit is effective for products purchased and installed between January 1, 2023, and December 31, 2025. Claim the credits using the IRS Form 5695 .
Monetization Process: Some state HTC programs provide for certificated credits, which essentially allow credits to be bought and sold. Other states require investors to be partners with the project sponsor in a similar manner to the federal HTC.
The building has been substantially rehabilitated; The building was placed in service as a building before the beginning of the rehabilitation; The building is a certified historic structure; and. Depreciation (or amortization in lieu of depreciation) is allowable with respect to the building.
Owner-occupied residential properties do not qualify for the federal rehabilitation tax credit. The 20% credit is available only to properties rehabilitated for income-producing purposes, including commercial, industrial, agricultural, rental residential or apartment use.
What Is the Historic Tax Credit? Investors who are rehabilitating or repurposing historic buildings may qualify for the Historic Tax Credit, or HTC. The HTC is a federal tax credit program which provides investors with a 20% credit against the costs of rehabilitating eligible historic structures.

Security and compliance

At DocHub, your data security is our priority. We follow HIPAA, SOC2, GDPR, and other standards, so you can work on your documents with confidence.

Learn more
ccpa2
pci-dss
gdpr-compliance
hipaa
soc-compliance
be ready to get more

Complete this form in 5 minutes or less

Get form

People also ask

If you have post-secondary school education expenses, you might be eligible for two credits. You might be able to claim an American Opportunity Credit of up to $2,500 for 2024. You can apply this to qualified education expenses paid for each eligible student.
Taxpayers who were eligible to claim, but did not claim, an additional child tax credit in previous years have three years after the due date of the return to claim it.

Related links