OMB Control Number: 1660-0015-2026

Get Form
health report Preview on Page 1

Here's how it works

01. Edit your health report online
Type text, add images, blackout confidential details, add comments, highlights and more.
02. Sign it in a few clicks
Draw your signature, type it, upload its image, or use your mobile device as a signature pad.
03. Share your form with others
Send outcomes measurement via email, link, or fax. You can also download it, export it or print it out.

How to use or fill out OMB Control Number: 1660-0015 with our platform

Form edit decoration
9.5
Ease of Setup
DocHub User Ratings on G2
9.0
Ease of Use
DocHub User Ratings on G2
  1. Click ‘Get Form’ to open the OMB Control Number: 1660-0015 in the editor.
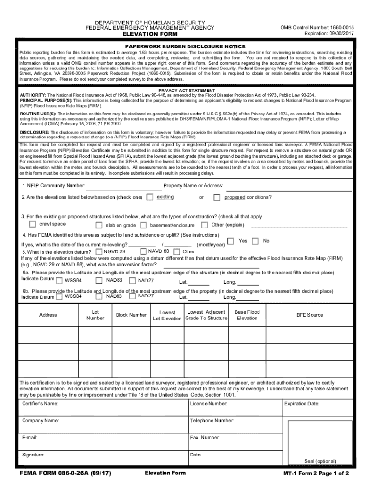
  2. Begin by entering the Property Name or Address at the top of the form. This is essential for identifying your request.
  3. Input the NFIP Community Number, which helps FEMA locate your community's flood insurance information.
  4. Indicate whether the elevations listed are based on existing or proposed conditions by checking the appropriate box.
  5. For each structure, check all applicable types of construction such as crawl space, slab on grade, or basement/enclosure.
  6. If applicable, indicate if FEMA has identified this area as subject to land subsidence or uplift and provide the date of current re-leveling.
  7. Fill in the elevation datum and provide latitude and longitude for both the structure and property as required.
  8. Complete all certification fields including certifier's name, license number, company name, and contact details before signing.

Start filling out your OMB Control Number: 1660-0015 form online for free today!

See more OMB Control Number: 1660-0015 versions

We've got more versions of the OMB Control Number: 1660-0015 form. Select the right OMB Control Number: 1660-0015 version from the list and start editing it straight away!
Versions Form popularity Fillable & printable
2017 4.5 Satisfied (25 Votes)
2014 4.8 Satisfied (181 Votes)
be ready to get more

Complete this form in 5 minutes or less

Get form

Got questions?

We have answers to the most popular questions from our customers. If you can't find an answer to your question, please contact us.
Contact us
OMB Control Numbers and Expiration Dates Approved information collections must display an OMB control number and an expiration date. An approval usually expires three years after OMB grants it, so the FCC must periodically ask for an extension of OMB approval until the collection is no longer needed.
The Commission also displays OMB control numbers on its Web site at .ferc.gov under Documents and Filings and then Information Collections or directly at ​docs-filing/​info-collections. asp. The Web site is updated regularly.
On FIRM title boxes, the first set of numbers identifies the community or countywide ID number. The second set of numbers identifies the Panel number.
All DoD information collections from members of the public must be approved by OMB and assigned an OMB Control Number. OMB Control Numbers must be displayed prominently on the collection instrument along with its associated expiration date. In most circumstances, OMB Control Numbers are valid for 3 years.
Title of Information Collection: Application for a U.S. Passport. OMB Control Number: 1405-0004.

Security and compliance

At DocHub, your data security is our priority. We follow HIPAA, SOC2, GDPR, and other standards, so you can work on your documents with confidence.

Learn more
ccpa2
pci-dss
gdpr-compliance
hipaa
soc-compliance

People also ask

The OBM is a control number but not a federal ID number. You will need to obtain a TIN or you wont be able to file your return electronically.

Related links